Proyecto METALURGICA ABREU |
|---|
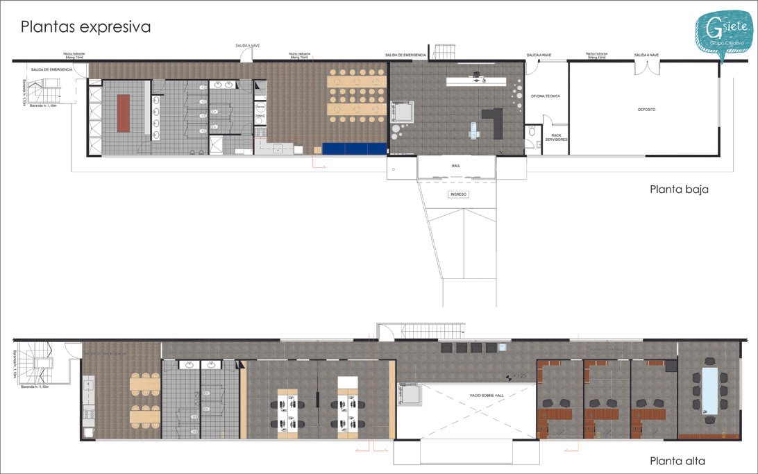
Proyecto para empresa metalúrgica ubicada en el Parque Industrial de la ciudad de Mar del Plata. Se realizó el diseño de la recepción, salas de espera, oficinas administrativas, técnicas, gerenciales y sala de reuniones. Además de los espacios de uso común, como comedores de empleados, cocinas y vestuarios.





